Sporthalle in Passivhausbauweise in Teltow
Leistungsumfang: LP 2-8
Bauherr:
Evang. Diakonissenhaus Berlin Teltow Lehnin
Bauzeit: 2011-2012
Kosten: 2 Mio
Fläche: 1150 qm
Fotografie:
Schwarz Architekturfotografie, Berlin
Konzept
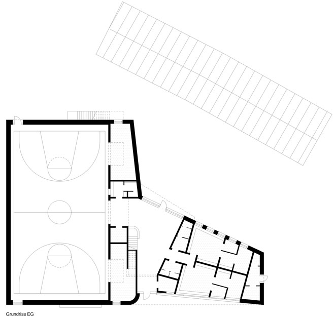
Die Sporthalle bildet den westlichen Abschluss der 'Campusbebauung' an der Lichterfelder Allee. Daneben befindet sich der neue Parkplatz, der zur Haupterschließung des Geländes dient. Der Sporthallenhaupteingang befindet sich östlich des Parkplatzes an einem internen Gehweg. Von dort gelangt man barrierefrei in das Foyer, an dem die Halle mit Geräteräumen, Lehrerraum und Behinderten-WC sowie der Nebenraumtrakt mit Besucher-WC's und Sportlerumkleiden liegt. Oberhalb der Geräteräume befindet sich der Gymnastikraum und eine Galerie, die Einblick in den Hallenraum und Zugang zu den im Dachraum befindlichen Technikräumen bietet.
Sporthalle und Nebenraumtrakt bilden einen L-förmigen Baukörper, der gemeinsam mit dem bestehenden Haus Bethanien einen kleinen Hof bildet. Hier liegt der östliche Nebenzugang des durchgesteckten Foyers. Eine archetypische Gebäudeausformung und die Wahl robuster Materialien orientieren sich am Bestand und sollen Nachhaltigkeit erzeugen. So sind für die Fassaden hinterlüftete, hochwärmegedämmte Vormauerschalen aus rotbuntem, teilweise reliefartigen Klinker und Holz-/ Isolierglasfenster vorgesehen. Die flachgeneigten Dächer werden mit einem hochwärmegedämmten Aluprofildachsystem gedeckt. PV-Kollektoren können mit geringem, technischen Aufwand nachmontiert werden. Die unterseitig sichtbaren Dachschalen bestehen aus feinperforierten, metallicfarbenen Akustik-/ Trapezblechen. Auf Unterdecken und Wandbekleidungen wurde weitgehenst verzichtet. Raumklimatisch dienen die Massivbauteile als Speichermasse.
Ausgebaut wurde die Sporthalle mit einem flächenelastischen Sportboden-/Eschenparkett, sowie ca.2,60m hohe Prallwände und Geräteraumtore mit Holzbekleidung.
Das Hallentragwerk bilden unterspannte Stahlbinder. Belichtet wird die Halle über Dachflächenfenster und hochliegende Fenster in der Nordfassade. Zur Energieeinsparung dient eine tageslichtabhängige Steuerung der Hallenbeleuchtung. Gebäudetechnisch vorgesehen wurde neben den hohen Wärmedämmstandards eine kontrollierte Be- und Entlüftung mit Wärmerückgewinnung und Warmluftheizung, sowie die Wärmeerzeugung über Geothermie. Angestrebt wurde der 'Passivhaustandard', womit die gemäß EnEV 2009 geforderten Energieverbrauchswerte erheblich unterschritten werden.




