Jugendfreizeitzentrum Betonoase
Wettbewerb 2016
3. Rang
Ganz anders als zuhause
In einem leichten Holz-Pavillon trifft man sich unter geneigten Zeltdächern. Verglaste Sheds lassen den Blick in den Himmel zu. Einem Ferienhaus ähnlich erzeugt das Holz eine wohnliche und zugleich robuste Atmosphäre. Die Nutzungen treten durch die „Dächer“ einzeln in Erscheinung, sind jedoch Teil eines Organismus.
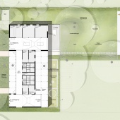
Städtebau und Landschaftsarchitektur
Das Haus tritt gegenüber der heutigen Bauflucht zurück, schafft einen Vorraum, präsentiert sich als Solitär an der Promenade und durchdringt mit größtem Respekt die Pappelreihe. Auf ganz natürliche Weise entstehen so zwei von einander getrennte Freibereiche. Der Eingangsbereich orientiert sich offen und freundlich zur Promenade und dient als Einladung für die zukünftigen Nutzer. Die bestehende Lindenallee bleibt erhalten und wird nur durch 2 Gitterrostrampen durchdrungen. Eine niedrige Pflan-zung aus schattenverträglichen Stauden bildet im Vorbereich einen grünen Teppich. Am nordwestlichen Rand des Grundstücks sind die funktionalen Flächen wie 1 Behin-dertenstellplatz, 16 Fahrradstellplätze und der Müllplatz untergebracht. Die Fläche des Müllplatzes ist für beide Einrichtungen getrennt ausgebildet.
Entsprechend den Bedürfnissen des Familienzentrums dockt der Spielbereich für die 0-6-jährigen direkt an die Außenterrasse an. Ein Gehölzstreifen aus Weiden bildet ei-nen robusten Rahmen für den Kleinkindbereich. In den Flächen aus Sand und Rin-denmulch ist genügend Platz für Kletterstangen, einen Buddel- und Matschbereich und ein Gartentrampolin. Von der rückwärtigen Terrasse kann der landschaftlich gestaltete Garten behindertengerecht betreten werden. Von hier aus führt ein schmaler Garten-weg entlang der Pappelreihe zum Gemeinschaftsgarten. Der Freibereich des Familien-zentrums kann unkompliziert um die östlich gelegene Brache erweitert werden.
Der Gemeinschaftsgarten ist durch einen Gartenzaun von dem offenen, landschaftlichen Bereich abgegrenzt. Eine Struktur aus wassergebundenen Wegen, Trittplatten und einem kleinen Grillplatz bildet den Rahmen für die zukünftige Gartennutzung. Außerdem bietet eine Gartenlaube Raum für Gartengeräte.
Zur Jugendfreizeiteinrichtung gehört der großzügige landschaftliche Bereich, der von einer lockeren Strauchpflanzung umgrenzt ist. Die Bestandsbäume in der Fläche wer-den zum größten Teil erhalten und durch Bodenmodellierung in die Landschaft integriert. Gebäudenah wird das Angebot für die Jugendlichen um eine wetterfeste Tischtennisplatte und eine Feuerstelle ergänzt.
Funktion – Gestalt – Konstruktion
In Analogie zum Außenraum bilden sich im Haus Bereiche für Jugendfreizeitheim und Familienzentrum. Der schlanke dienende Trakt verbindet beide Teile. Einzelfundamente mit Wurzeln überbrückenden Betonbalken ermöglichen mit drei Ausnahmen den Erhalt des Baumbestandes. Gleichzeitig werden auf diese Weise die Erdarbeiten und die Z2 Kosten reduziert. Die durchgesteckten Zentralräume nehmen Beziehung zum öf-fentlichen Raum wie zum Garten auf.
Prägend für den Charakter und zentral für die Nachhaltigkeit des Hauses ist die Verwendung von Holz für tragende und nicht tragende Bauteile. Alle Materialien bleiben unverkleidet, auf Anstriche wird verzichtet. Die mit Holzflexdämmung hochgedämm-ten Wände und Decken sind mit einer hell lasierten vertikalen Holzlattung verkleidet. Die Gestalt des Hauses erwächst aus seinen einzelnen Elementen. Die Böden sind als massive schwimmende Estriche ausgebildet, die durch ihre Stärke zur thermischen Trägheit des Hauses beitragen. Die 3-fach verglasten Holz-Alu-Fenster sind überwiegend festverglast, um den Energieverlust zu minimieren. In Bereichen, die nur Licht, aber keinen Durchblick benötigen, wird Kapillarglas zur erhöhten Wärmedämmung verwendet.
Energie - Wirtschaftlichkeit
Hoher Wärmedämmstandard, angemessene Fensteranteile und Orientierung bilden die Grundlagen energetisch optimierten Bauens. Ein Energiestandard deutlich unter der gültigen ENEV sollte durch die vorgenannten Maßnahmen erzielbar sein. Passive Kühlung erfolgt grundsätzlich durch die Ausnutzung der Pufferung in der Gebäudemasse und Nachtluftspülung. Dachflächen können für Photovoltaik genutzt werden.
Die energetischen Maßnahmen sowie robuste, wertige und einfach zu wartende Materialien sorgen für geringe Unterhaltskosten. Die kompakte Bauweise ( A/V=0,78) senkt Betriebs- und Erstellungskosten.




